Központi elérhetőségeink: Mobil: +36303274579, E-mail:
| Azonosító szám: | 5401277 |
| Típus: | Kiadó |
| Megye/kerület: | Budapest/XXI. kerület |
| Település: | Budapest |
| Bérleti díj: | 3,93 EUR/m2/hó (1430,00 HUF/m2/hó) |
| Minimum bérelhető terület: | 170 m2 |
| Minimum bérleti periódus: | 12 hó |
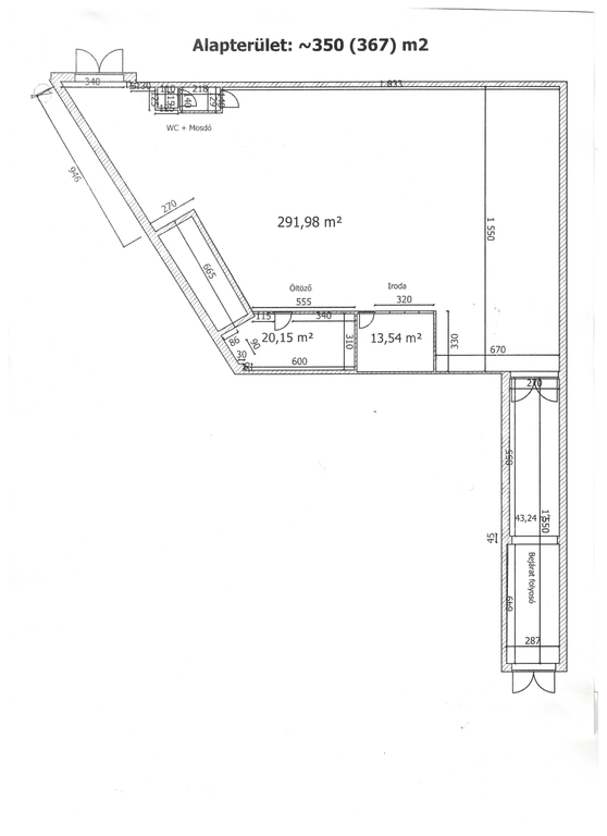
| Összes terület: | 350 m2 |
| Bérelhető terület: | 170 m2 |
| Szintek száma: | 1 |
| Épület állapota: |
|
| Raktár állapota: |
|
| Építés éve: | 1900 |
| Behajtási engedély: | Nincs korlátozás |
| Közművek: |
|
| Hőmérséklet: |
|
| Belmagasság: | 5,30 m |
| Egyéb tulajdonságok: |
|
Budapest XXI. kerület Csepel Művek, össztömeg korlátozás nélkül megközelíthető zónában 170nm-es temperált, mobil kerítéssel leválasztott csarnokrész raktározási vagy műhely céljára kiadó!
Az épület az 1900-as évek elején épült, karbantartott.
Temperálást sötéten sugárzó biztosítja.
Kapu mérete: 2.4*2.6m.
Belmagasság: 5.3-8.5.
Bérleti díj: 1430 Ft/nm/hó + ÁFA.
Rezsi mérőórák szerint.
3 havi kaució szükséges.
Rigó Andrea

Budapest XXI. kerület Csepel Művek 1628nm-es fűtetlen, daruzott csarnok kiadó
Típus: Kiadó
Település: Budapest
Megye/kerület: Budapest/XXI. kerület
Bérleti díj: 3,00 EUR/m2/hó
Azonosító szám: 5401178
Budapest XXI. kerület Csepel Művek 4620nm-es daruzott, fűtött csarnok kiadó
Típus: Kiadó
Település: Budapest
Megye/kerület: Budapest/XXI. kerület
Bérleti díj: 3,90 EUR/m2/hó
Azonosító szám: 5401177
Budapest XXI. kerület Csepel 2800nm-es jó állapotú daruzott csarnok kiadó
Típus: Kiadó
Település: Budapest
Megye/kerület: Budapest/XXI. kerület
Bérleti díj: 2,90 EUR/m2/hó
Azonosító szám: 5401165